














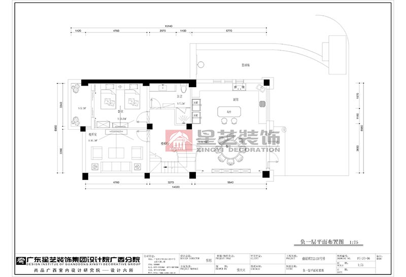
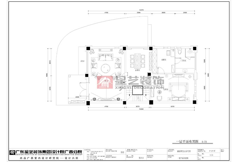
翡丽湾320平简约欧式别墅装修设计说明
简约欧式风格沿袭古典欧式风格的主元素,融入了现代的生活元素。欧式的居室有的不只是豪华大气,更多的是惬意和浪漫。通过完美的典线,精益求精的细节处理,带给家人不尽的舒服触感,实际上和谐是欧式风格的最高境界。
同时,欧式装饰风格最适用于本套大面积房子,若空间太小,不但无法展现其风格势气,反而对生活在其间的人造成一种压迫感。欧式风格很讲究造型门的造型设计,包括房间的门和各种柜门,既要突出凹凸感,又要有优美的弧线,两种造型相映感趣,风情万种。当然,还要具有一定的美学素养,才能善用欧式风格,否则只会弄巧成拙。墙面用优质墙纸,地面材料以石材和地板为主。欧式客厅用家具和软装饰来营造整体效果以衬托豪华效果。布艺沙发组合有着丝绒的质感以及流畅的木质曲线,将传统欧式家居的奢华与现代家居的实用性完美地结合。壁灯自然不可或缺,它被安置在空间的交汇处,又与一大幅色彩鲜艳的油画相呼应,给敞开式的客厅提供了一个新的亮点。大面积的玻璃窗带来了良好的采光,落地的窗帘很是气派。在设计上追求空间变化的连续性和形体变化的层次感,室内多采用带有图案的壁纸、地毯、窗帘(简约欧式风格窗帘的代表花型是大马士革)、床罩、帐幔及古典装饰画,体现华丽的风格。
金源一品97平装修案例
荣和大地179平装修案例
教育路3号单位房125平装修案例
龙光玖珑湖200平装修案例
鸣翠谷300平装修案例
招商境界215平装修案例
合景天峻300平装修案例
广源大都会190平装修案例
提交信息,试看
人气:11749
请必须填写正确信息,以便我们更好的为您服务!